K-style 東豊中
空とつながる、風と暮らす。ロジアと吹き抜けが織りなす、開放の住まい。
LAND PLAN
全1区画
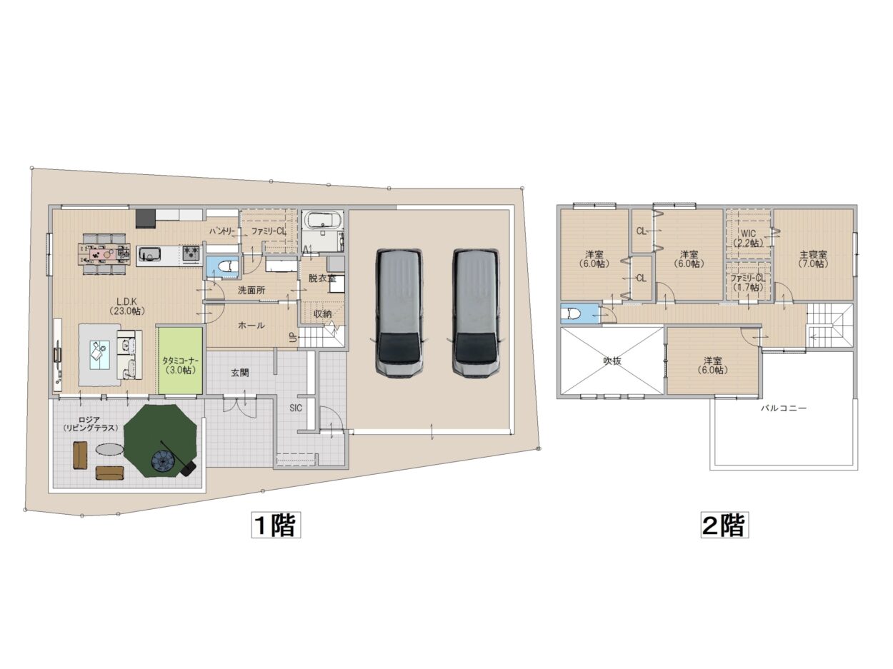
FLOOR PLAN
-
※プラン図であり、オプション商品も含まれます。号地
4LDKPOINT〇北摂エリアでも希少な65坪超のフラットな土地。都心への好アクセスと、閑静な住環境を兼ね備えた資産価値の高い土地で、理想のお家づくりをお考えの方へ。車2台が停められるゆとりの敷地。教育環境も整っており、子育てにもぴったりです。
POINT〇大きな吹き抜けから降り注ぐ自然光と、季節の風を感じられるロジア。開放感あふれる空間が家族の笑顔を育み、ゆったりとした上質な暮らしを実現する2階建ての住まいです。
GALLERY
OUTLINE
- 物件種別
- 土地
- 所在地
- 大阪府豊中市東豊中町1-1-7
- 交通
- 大阪モノレール本線「少路」徒歩14分
- 総区画数
- 1
- 土地面積
- 216.11
- 建築面積
- 地目
- 宅地
- 用途地域
- 第一種低層住居専用地域
- 道路幅員
- 4m
- 建ぺい率/容積率
- 40% 80%
- 設備
- 省エネ基準適合住宅(断熱等級4・省エネ等級4)
- 販売価格
- 土地価格6,850万円
- 構造
- 木造2階建
- 引き渡し
- 契約後 約8か月
- 取引態様
- 専属専任
LOCATION
-
豊中市立東豊中小学校 徒歩8分(約650m) -
少路駅 徒歩14分(約1000m) -
豊中市立東豊中図書館 徒歩19分(約1400m) -
千里緑地 徒歩18分(約1400m)