K-style 幸町

静かな街、便利な駅近。幸町で始める新しい毎日。

寝屋川市駅から無理なくアクセスできる落ち着いた住宅街、幸町。静かで穏やかな雰囲気の中に、暮らしにちょうどいい心地よさが広がっています。都心へもスムーズにつながる立地で、これからの生活をゆったり楽しみたい方にも安心して選んでいただけるエリアです。

LAND PLAN

1区画

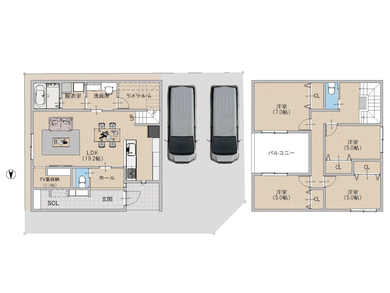
敷地内に2台分の駐車スペースが確保されており、来客時や2台所有の方にも安心。日々のカーライフを快適にサポートしてくれる嬉しいポイントです。

FLOOR PLAN

  • 号地
    4LDK
    敷地面積/
    162.7㎡(49.22坪)
    建築面積/
    97㎡(29.34坪)
    延床面積/
    117.45㎡(35.53坪)
    1階床面積/
    61.56㎡(18.62坪)
    2階床面積/
    55.89㎡(16.91坪)
    ※プラン図であり、オプション商品も含まれます。
    POINT

    郊外ならではの静かな環境で、家族でのびのび暮らせるプラン。19帖の広いリビングを中心に、コーディネーターと間取りをカスタマイズ可能。シューズインクローゼットやテレビ裏収納で玄関やリビングもすっきり。

    POINT

    洗面所を脱衣所と分けたことで、来客時にも気兼ねなく使える快適な空間に。ランドリールームには扉があるので、洗濯物が見える心配もありません。ガス乾燥機「乾太くん」を標準装備しているため、雨天や黄砂が気になる時期も1年を通して気兼ねなく洗濯ができ、日々の家事を快適にサポートします。

OUTLINE

物件種別
土地
所在地
大阪府寝屋川市幸町19-7
交通
京阪本線『寝屋川市』駅 徒歩16分 
総区画数
1区画
土地面積
162.7㎡
建築面積
105㎡
地目
宅地
用途地域
第二種中高層住居専用地域
道路幅員
4m
建ぺい率/容積率
60%.200%
設備
省エネ基準適合住宅(断熱等級4・省エネ等級4
販売価格
建築条件付き土地価格 2,800万円
構造
木造2階建て
引き渡し
契約後 8ヶ月
取引態様
売主

LOCATION

  • イズミヤ寝屋川店 徒歩15分(約1160m)
  • ウエルシア寝屋川緑町店 徒歩12分(約950m)
  • 初本町公園 徒歩15分(約1130m)
  • 寝屋川市立中央小学校 徒歩14分(約1370m)
  • セブンイレブン寝屋川音羽町店 徒歩10分(約760m)
  • 寝屋川市立第一中学校 徒歩18分(約1370m)
  • 大阪府寝屋川警察署 徒歩8分(約600m)
  • ニトリ寝屋川店 徒歩15分(約1200m)

ACCESS