K-style 平野区喜連

受け継がれる歴史、広がる暮らし。
昔と今が寄り添う、喜連で暮らす。

喜連は、歴史ある街並みと現代の利便性が融合する大阪市平野区の注目エリア。更地の土地に、ご自身のライフスタイルに合わせた理想の住まいをデザイナーと一緒にゼロから実現できます。通勤・通学に便利な交通網と、日常を支える商業施設も充実しています。

LAND PLAN

1区画

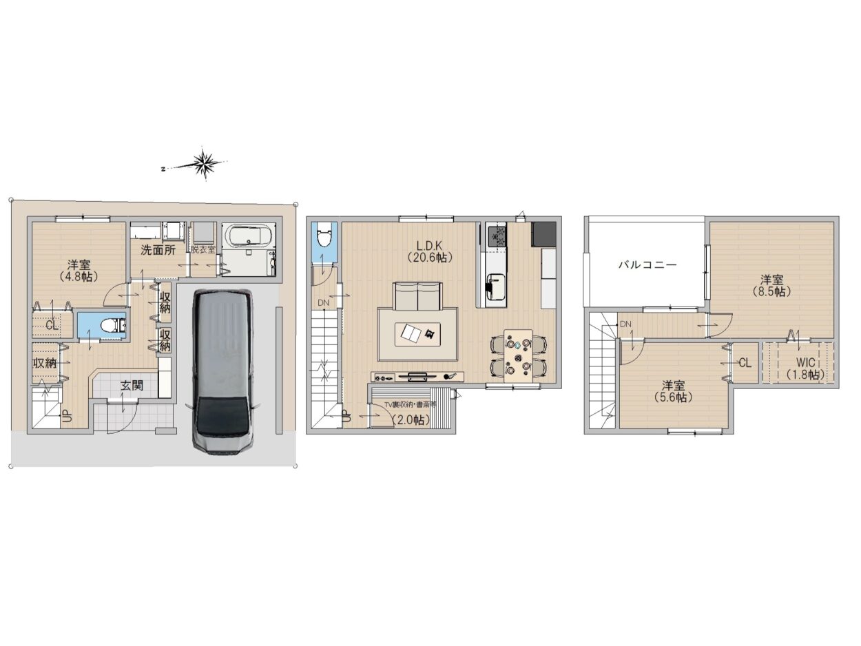
1階・3階に収納スペースを設け、3部屋の居室を確保。部屋数を調整し部屋数を増やすことも可能!20.6帖のゆったりリビングで、毎日の暮らしにゆとりをもたらします。

FLOOR PLAN

  • 号地
    4LDK
    敷地面積/
    66.65㎡(20.16坪)
    建築面積/
    46.6㎡(14.1坪)
    延床面積/
    105.69㎡(31.97坪)
    1階床面積/
    30.37㎡(9.19坪)
    2階床面積/
    42.52㎡(12.86坪)
    3階床面積/
    32.80㎡(9.92坪)
    ※プラン図であり、オプション商品も含まれます。
    POINT

    歴史ある街並みが残る喜連は、静かで落ち着いた雰囲気が魅力。しかしながら、駅や商業施設がすぐそばで、毎日の生活にはとっても便利。子どもを育てる環境として「ちょうどいい」が詰まったこの街で、自由設計の家づくりをしませんか?家族の希望を取り入れて、あたたかな暮らしをスタートできます。

    POINT

    1階にお風呂とゆったりランドリースペースを配置した、家事ラク設計の3階建て。人気の「乾太くん」も標準装備だから、雨の日も夜でも洗濯OK!洗う→干す→たたむが階段の上り下りをしなくて完結します。忙しいママの毎日をしっかりサポート。

OUTLINE

物件種別
土地
所在地
大阪府平野区喜連1丁目8-36
交通
地下鉄谷町線『喜連瓜破』駅 徒歩8分 
総区画数
1区画
土地面積
66.65㎡
建築面積
地目
宅地
用途地域
第二種中高層住居専用地域
道路幅員
4m
建ぺい率/容積率
60%.200%
設備
省エネ基準適合住宅(断熱等級4・省エネ等級4
販売価格
土地価格 1900万円
構造
木造3階建て
引き渡し
契約後 8ヶ月
取引態様
売主

LOCATION

  • スギ薬局喜連西店 徒歩8分(約590m)
  • ライフ喜連瓜破店 徒歩8分(約5800m)
  • 大阪市立喜連北小学校 徒歩4分(約300m)
  • 医療法人五月会平野若葉会病院 徒歩9分(約670m)
  • ローソン平野喜連一丁目店 徒歩5分(約380m)
  • 大阪市立喜連中学校 徒歩6分(約410m)
  • 平野喜連郵便局 徒歩7分(約520m)

ACCESS